产品中心
PRODUCT CENTER
联系我们
Contact us
巩义市新华丰道讑֤有限公司
固 话:0371-64033589
手 机:18638168566 13783416000
13683712868 13838577194
联系人:王先?女?/p>
Q QQ?622356298
旺 旺:gyhuafeng
微 信:wei13683712868
| 址Qhttp://m.siyouzhi.com/
地 址Q河南省巩义市西村开发区永安路南D?11?/p>
- 产品介绍
- 适用范围
- CAD囄
- 技术参?
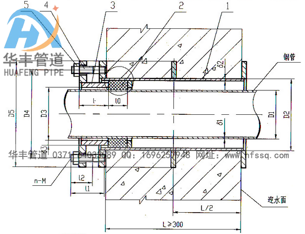
加长加翼环柔性防水套的分类
加长加翼环柔性防水套分为刚性和柔性两U。安装完毕后允许有变形量?--柔性;不允许有变Ş量的--刚性。主要是使用的地方不一P柔性防水套主要用在h防墙Q水池等要求很高的地方,刚性防水套一般用在地下室{管道需I管道地位置?/p>
加长加翼环柔性防水套和加长加翼环刚性防水套的区别
加长加翼环柔性防水套是钢管外加环Q钢板做的环形套在钢上Q,装于墙内Q多为凝土墙)Q用于一般管道穿墙,利于墙体的防_ 柔性防水套除了外部翼环,内部q有圈之类的,法兰内丝Q有成套卖的Q也可自己加工,用于有减震需要的\Q如和水泵连接的道I墙时。也是_如果考虑墙体两面的防水性能Q就要选用柔性防水套;如果仅仅是考虑道的穿墙,而不考虑I墙后,墙体两面的防水性能以及道的位Ud形,可以选用刚性防水套?/p>












